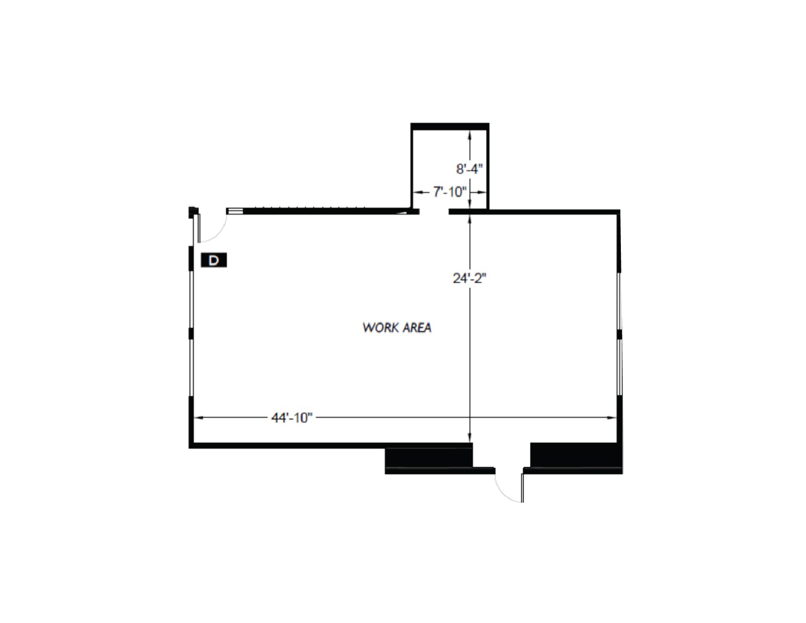
1227 Weller SUITE ARetail Space: 1,850 SF Not Available SUITE BOffice Space: 1,878 SF Not Available SUITE COffice Space: 1,749 SF Not Available SUITE DOffice Space: 1,264 SF Not Available See More Properties